Avila House, Bromley, Kilpedder, Co. Wicklow | House For Sale Wicklow
19486
page-template,page-template-full_width,page-template-full_width-php,page,page-id-19486,page-child,parent-pageid-16346,qode-quick-links-1.0,ajax_fade,page_not_loaded,,qode-title-hidden,qode-theme-ver-11.2,qode-theme-bridge,wpb-js-composer js-comp-ver-5.2.1,vc_responsive

Avila House, Bromley, Kilpedder, Co. Wicklow A63XP93

AT A GLANCE

LOCATION: Four minutes’ walk from Kilpedder village
PROPERTY TYPE: Detached period house on own grounds
BEDROOMS:  4
FLOOR AREA: 203 sq m/2,185.07 sq ft
BER: D2 BER Nr: Perf: kW²/yr

PRICE: SOLD

Set against the backdrop of the Wicklow Mountains on an extensive site totalling over one third of an acre, this spacious period property dating back to the early 19th Century has benefitted from a comprehensive and stylish makeover that has brought it right into the modern era.

Dating back to 1810, Avila House was originally built as a coaching house, a role for which it was eminently suitable thanks to its location, then as now, on the main route from Dublin to the southeast.

Over the decades, the original house was extended to the point where it is now twice its original size, with a total floor area of almost 2,200 square feet (circa 203 sq m). Coming right up to date, the current owners completed a major refurbishment that tastefully combines its period character with all the bells and whistles of contemporary 21st Century living.

Located 300 metres from the centre of Kilpedder village, Avila nestles within private and secluded grounds screened from public view by mature boundary walls, hedges and trees. Access to the property is via electronically controlled gates, which leads to a large gravelled front driveway with ample parking for numerous cars.

On stepping into the spacious entrance hall, there’s an eye-catching vista through an archway and on through a high window at the far side of the house into the back garden.

The entrance hall leads to a succession of large and well-proportioned reception rooms that lend themselves to a variety of uses. These include a large, light-filled sitting room overlooking the front garden that’s ideal for entertaining, an inviting dining room looking on to the back garden, a relaxing sitting room with original timber ceiling beams and an elegant, dual-aspect home office that would not look out of place in the glossiest of style magazines.

A real standout is an exceptionally large kitchen measuring over 260 square feet, fitted out along three walls with pristine contemporary storage, with extensive butcher-block counter top space and integrated appliances. Heating this large but toasty family living space is a solid fuel burning Stanley stove.

A utility room off the kitchen, and a guest bathroom and inner hall, both off the entrance hall, complete the downstairs accommodation.

Upstairs, a spacious landing and adjoining corridor lead to four exceptionally large bedrooms, two of them ensuite, and the main bathroom with Jacuzzi bath and separate walk-in shower. All three upstairs bathrooms feature larger than average walk-in showers with rainforest showerhead, and contemporary fixtures and sanitary ware.

Outside, the property’s large footprint means there are exceptionally large gardens to the front and rear, with additional space to the sides

Video

LOCATION

Located next to the N11 and four minutes walk from Kilpedder village, Avila is ideally placed to enjoy the best of both town and country living.

That’s thanks to its convenient and accessible location within easy reach of Wicklow’s natural hinterland, yet just a short drive from the major town centres of nearby Bray and Greystones.

Set against the scenic backdrop of the Wicklow Mountains, the property enjoys a quiet and secluded location in a country setting 300 metres from Kilpedder village centre with its shops, pubs and other local services.

Yet it is also within easy reach of the many shops, cafés, restaurants, schools, services, sports facilities and recreational amenities in nearby Greystones (10 minutes’ drive away) and Bray (15 minutes).

Kilpedder is well placed to avail of North Wicklow’s wealth of sports clubs and recreational amenities including GAA, soccer, tennis, horse riding, sailing, rowing and fishing. The area offers a good choice of golf clubs, including the Druid’s Glen Hotel and Golf Resort less than ten minutes’ drive away. Nearby Greystones is also home to the Shoreline Leisure Centre.

Positioned on the cusp of the Wicklow hinterland, the property is also ideally positioned to explore the many walks, trails and other natural attractions the Garden County has to offer. Kilpedder village is linked to Greystones and Delgany by a local bus service, while the close proximity of the N11 puts it within convenient driving distance of Dublin, as well as Bray and Greystones DART stations.

The area is well served by local crèches, Montessori and pre-schools, while nearby Greystones, Delgany and Kilcoole offer an excellent choice of well-regarded primary and secondary schools.

Viewing is highly recommended to those seeking country living within convenient reach of Dublin city.

ACCOMMODATION

GROUND FLOOR:

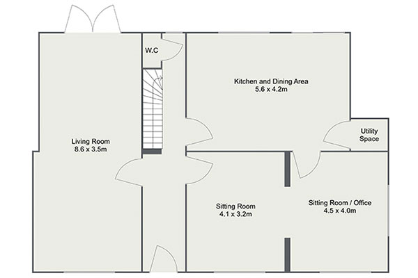
Entrance hall (4.7 x 1.85m): with hardwood floor, recessed LED ceiling lights, coving, carpeted stairs for first floor, understair storage and open arch leading to inner hall

Inner hall (4.7 x 1.39m): with hardwood floor, recessed LED ceiling lights and near ceiling-height window overlooking back garden

Guest bathroom (1.29 x 1.1m): off hall, with WC, WHB, fitted shelves, coat hangers and towel rail

Living room (5.06 x 4.06): off entrance hall and overlooking front garden, with hardwood floor, recessed LED ceiling lights, pole-mounted curtains and feature fireplace with open fuel-burning grate, brick surround, marble hearth, timber mantel and alcoves to either side with built-in shelving

Dining room (3.9 x 3.66m): adjoining living room and overlooking back garden, with hardwood floor, recessed LED ceiling lights and double glass doors leading to back garden

Sitting room (4.23 x 3.38m): off entrance hall and overlooking front garden, with carpet, pole-mounted curtains, original period timber ceiling beams and feature fireplace with open fuel-burning grate, marble hearth, surround and mantel, and built-in alcove press

Home office (4.81 x 4.4): dual aspect space off sitting room, with windows overlooking front garden and side of house, with carpet, pole-mounted curtains, radiator with bespoke cover and recessed LED ceiling lights

Kitchen (5.63 x 4.42m): exceptionally large family living space overlooking back garden with:
• Contemporary style, modern fitted kitchen with floor and eye-level units along three walls, including glass door cabinets, pull-out storage and storage press
• Complete range of integrated appliances including Samsung electric oven and hob with extractor fan, Zanussi dishwasher, Samsung washing machine and Beko fridge freezer
• Extensive butcher-block counter top space
• One-and-a-half stainless steel sink with drainer
• Tiled splashbacks, including tiled window sill over sink
• Recessed LED ceiling lights
• Wood-burning Stanley stove
• Tiled floor
• Alcove with built-in shelving and central heating control panel
• Double glass doors leading to back garden

Utility room (1.75 x 1.1m): off kitchen, accommodating dryer and microwave oven, with tiled floor and built-in shelving

FIRST FLOOR:

Landing (4.42 x 1.64): accessed by stairs from entrance hall, with built-in, ceiling-height storage presses with shelving

Bedroom 1 (4.27 x 3.85m): overlooking front garden with ensuite bathroom, carpet, roof-height ceiling, hanging pendant style ceiling light and full-wall, built-in storage comprising press with drawers and wardrobes on either side

Ensuite bathroom (2.88 x 1.88): contemporary style ensuite off Bedroom 1, with WC, WHB, tiled floor, half wall-height tiling and large walk-in shower with ceiling-height tiled surround, glass shower screen and rainforest shower

Bedroom 2 (4.86 x 4.34 + 1.86 x 1.38m): dual aspect room overlooking front garden and side of house, with arched entry way, ensuite bathroom, carpet, pole-mounted curtains, roof-height ceiling, hanging pendant style ceiling light and full-wall, built-in storage comprising press with drawers and wardrobes on either side

Corridor (2.77 x 1.28): off landing, leading to bedrooms 3 and 4

Bedroom 3 (5.1 x 4.62m): dual aspect room with large windows overlooking back garden and opaque window to side, ensuite bathroom, carpet, recessed LED ceiling lights, pole-mounted curtains and built-in mirror door Sliderobe wardrobe

Ensuite bathroom (2.38 x 1.64): contemporary style ensuite off Bedroom 3, with WC, WHB with integrated cabinet and mirror above, tiled floor, half wall-height tiling and large walk-in shower with ceiling-height tiled surround, glass shower screen and rainforest shower

Bedroom 4 (4.09 x 3.69 + 1.28 x 1.2m): dual aspect room with windows overlooking back garden and side of house, with carpet, pole-mounted curtains, recessed LED ceiling lights, and full-wall, built-in storage comprising press with drawers and wardrobes on either side

Main bathroom (3.18 x 3.17): contemporary style bathroom, with WC, WHB, tiled floor, half wall-height tiling, heated towel rail, Jacuzzi bath and large walk-in corner shower with ceiling-height tiled surround, glass shower screen and rainforest shower

OUTSIDE

Avila is set within its own extensive private grounds totalling over one third of an acre, with:
• Exceptionally large gardens to front and rear, with additional outdoors space on both sides
• Secure access from public road via electronically controlled gates
• Spacious gravelled drive at front of house with ample parking space for several cars
• Lawned area adjoining driveway with mature trees and children’s swing
• Exceptionally large back garden, mainly set out in lawn with sun patio at dead centre of lawn
• Property not overlooked, with mature, house-height trees along the side and rear boundaries screening back garden from outside view
• Courtyard to side of house
• Log storage area on opposite side of house
• Side access providing outside access between front and back gardens
• Mature plants, shrubs and trees
• Idyllic country setting with superb mountain views

FEATURES

• Exceptionally well-presented period property
• Comprehensively renovated to highest modern standards
• Versatile and exceptionally large living space throughout
• Retains original period features including extra-thick walls, ceiling beams and archways
• UPVC double-glazed windows and exterior doors
• Sold timber interior doors
• Quality hardwood flooring and carpets throughout
• Extensive landscaped gardens maintained to high standard
• Sun patio
• Property set back from public road, ensuring privacy and seclusion
• Privacy enhanced by mature, high hedging to rear of property
• Alarm
• Oil-fired central heating
• WiFi

DIRECTIONS

For directions, simply enter the property’s Eircode into Google Maps on your smartphone: A63 XP93

VIEWING:

By appointment only